Belluno - Unifamiliare Casa singola
Rif. 483-12
€ 180.000
Indirizzo : via Lungardo - Belluno
Area : CENTRO
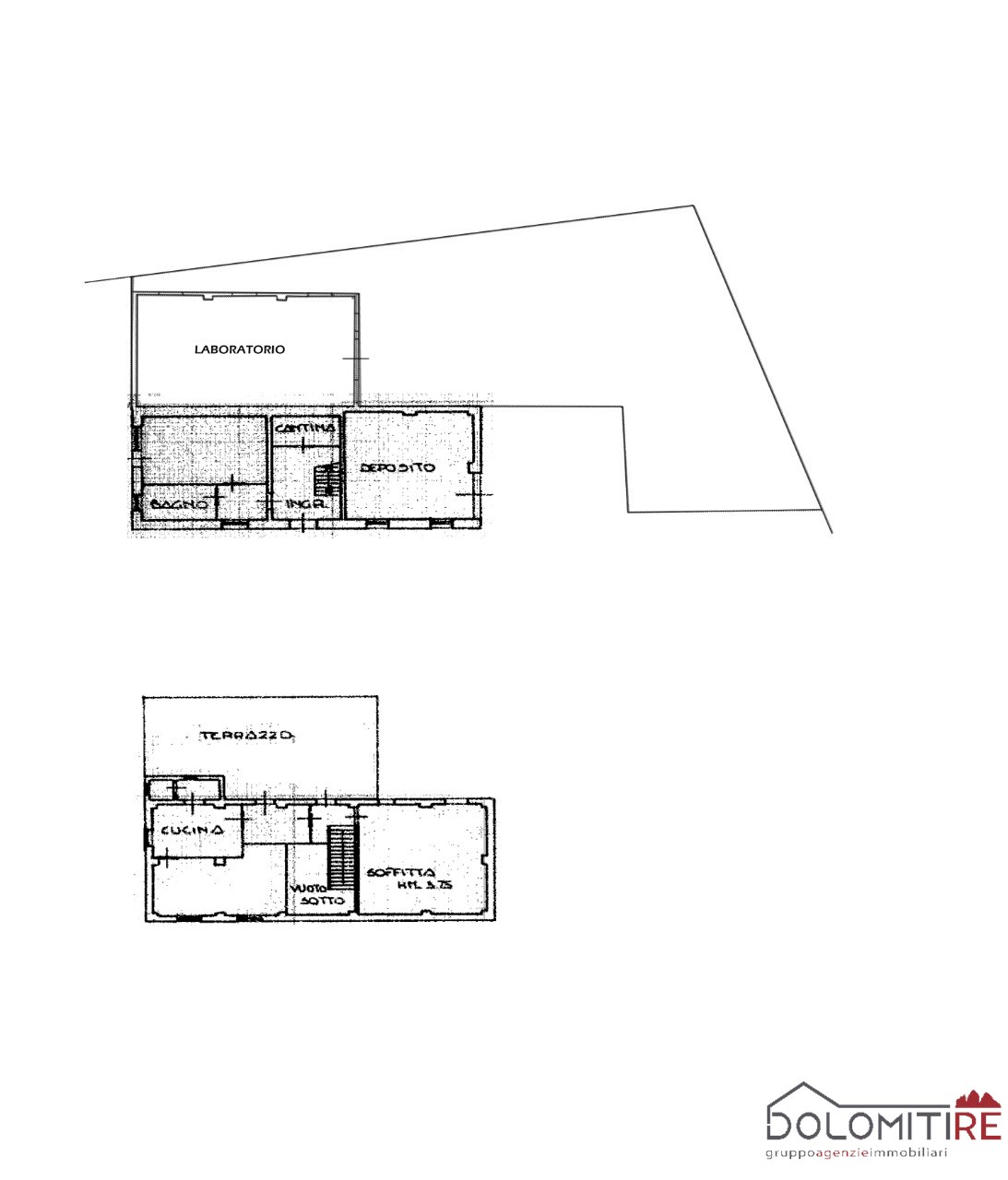
*** CASA SINGOLA DA RISTRUTTURARE AI PIEDI DELLA CITTA' *** Belluno - in primissima periferia, proponiamo in vendita casa singola dal grande potenziale, in posizione soleggiata e immersa nel verde. La proprietà gode di un suggestivo giardino che degrada dolcemente verso il torrente Ardo, regalando scorci naturali di rara bellezza. La casa si sviluppa su due piani fuori terra ed è completamente da ristrutturare, offrendo così l'opportunità di personalizzare ogni spazio secondo il proprio gusto e le proprie esigenze. La configurazione attuale consente una grande flessibilità: è possibile realizzare due appartamenti indipendenti (uno per ogni piano) oppure un'unica ampia abitazione su due livelli, adatta ad una famiglia che desidera spazi generosi e ben distribuiti. A completare la proprietà, un ampio garage/laboratorio affiancato all'abitazione, ideale per piccole attività artigianali, hobby o come spazioso ricovero per veicoli. Sopra il laboratorio si trova un grande terrazzo di circa 40 mq., uno spazio aperto che si presta a diventare una zona conviviale, solarium o giardino pensile per momenti di relax. Una soluzione dal fascino autentico, tutta da reinventare, per trasformare questa struttura esistente nella casa che hai sempre desiderato. Contattaci per info o per visite! Agenzia Greggio - gruppo DOLOMITI RE 0437/942014Dettagli :
| Condizioni della proprieta' | Da ristrutturare |
|---|---|
| Numero di stanze | 5 |
| Numero di piani | 2 |
| Numero di bagni | 1 |
| Tipo di riscaldamento | nd |

