Longarone - Locale commerciale Negozio
Rif. 788-13
€ 430.000
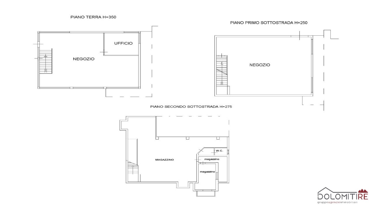
Indirizzo : via Roma - Longarone Nel centro di Longarone, in posizione ben visibile e con ampie vetrine che affacciano sulla strada principale, proponiamo in vendita un edificio ad uso commerciale-residenziale, costituito da negozio con ufficio al piano terra, negozio al piano primo sottostrada, magazzini, anti w.c. e w.c. e garage al piano secondo sottostrada. Al piano primo si trova l'appartamento, completamente ristrutturato, caratterizzato da ampi spazi e composto da ingresso, cucina-soggiorno, camera matrimoniale, camera doppia, locale ad uso ripostiglio-guardaroba, ulteriore ripostiglio, bagno principale, bagno di servizio e terrazza su due lati. Nessuna spesa di condominio. A.P.E. appartamento: classe F - indice prestazione energetica non rinnovabile EPgl,nren KWh/mq anno 161,49 - indice prestazione energetica rinnovabile EPgl,ren KWh/mq anno 0,80
Dettagli :
| Condizioni della proprieta' | Ottimo |
|---|---|
| Numero di stanze | 4 |
| Numero di piani | 4 |
| Numero di bagni | 3 |
| Tipo di riscaldamento | autonomo |

