Ponte Nelle Alpi - Appartamento
Rif. 804-13
€ 111.000
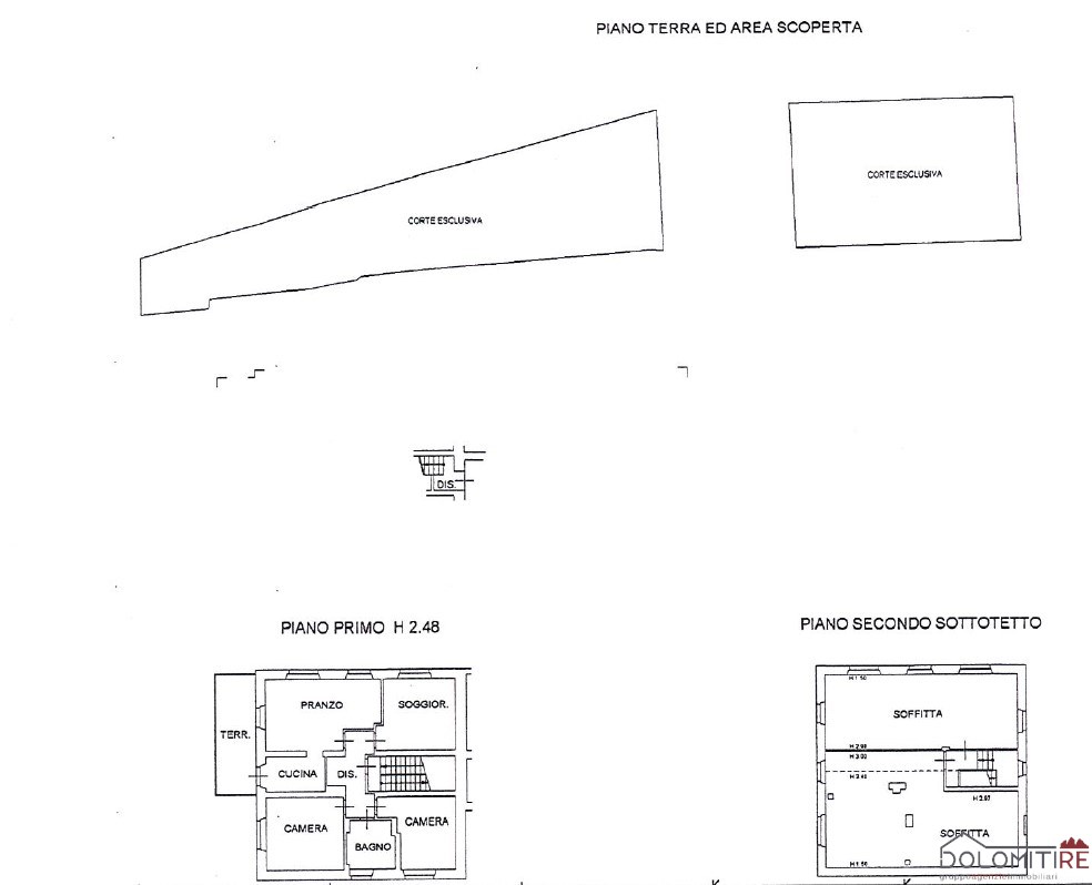
Indirizzo : RIONE SANTA CATERINA - Ponte Nelle Alpi Località Santa Caterina - Appartamento al piano primo, in buone condizioni generali, già abitabile, in quanto oggetto di alcuni interventi di rinnovamento nel corso degli anni, composto da ingresso, cucina e zona pranzo-soggiorno con caminetto, tre camere, bagno con vasca e doccia, ampio terrazzo. Dispone di portoncino blindato e di infissi recenti con vetrocamera. Della proprietà fanno parte una spaziosa soffitta, della superficie dell'appartamento, facilmente raggiungibile da una scala esclusiva e due comodi posti auto scoperti esclusivi. No spese condominiali
Dettagli :
| Condizioni della proprieta' | Buono |
|---|---|
| Numero di stanze | 5 |
| Numero di camere da letto | 3 |
| Numero di piani | 1 |
| Numero di bagni | 1 |
| Tipo di riscaldamento | nd |

